【富士宮市山宮NewModel 期間限定公開】ミニチュアホースと暮らすダークトーンの四角い家
駿河湾まで見える2階からの景色を楽しみながらミニチュアホースと暮らす。
キッチンを起点とした回遊導線を採用した、家事効率のいい間取り。
イベント概要
| 日付 | 2026年2/14(土)〜3/15(日) |
|---|---|
| 時間 | 10:00~18:00 |
| 開催場所 | 静岡県富士宮市山宮1510 > 地図を見る |
ファイブホームの見学会は
お施主様が実際にこれから住まわれる家です!

ダークトーンでまとめた四角い家
ダークトーンの外壁材を使用し、シンプルで大人かっこいい外観に仕上がりました。
(※写真はイメージです。)

間仕切りのない22帖を越える広々LDK
広々22.5帖のLDKで快適に家族の団らんを作り出せます。
(※写真はイメージです。)

スタイリッシュなデザインの洗面カウンター
スタイリッシュさと耐久性を兼ね備えた造作の洗面台
(※写真はイメージです。)

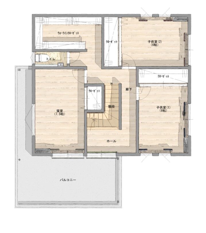
1階
広々22.5帖のLDK。キッチンを起点にした家事効率の良い間取りになっています。
脱衣所とランドリールームは兼用になっているので雨の日も安心。

2階
駿河湾の景色を望むバルコニーでは外の空気を感じながらリラックスできます。
衣類や小物を効率的に収納できるウォークインクローゼットにも注目!
ファイブホームはシンプルでカッコいい家の提案が得意!
見学会ではこんな建物が実際にみられます!
本棚階段のある陽だまり平屋
晴れた日はカーテンを全て開けて日向ぼっこできるほど暖かな家。南面に大きく開いた窓と上部のはめ込み窓のおかげで「陽あたりのよい明るい家」という希望を実現。ロフトに向かう階段は、本棚としても活用。アクセントクロスで見た目の可愛さと実用性を兼ね備えた。
背の高い玄関が出迎える平屋
住宅地にたたずむ美術館かカフェのようなお家。玄関を入ると広い土間が現れ、導かれるようにリビングへ進むと、グレーを基調に効き色のブラックが点在するスタイリッシュな空間が広がる。夜のライトアップで外観の雰囲気はがらり。フォルムの美しさが一層引き立つ。
薪ストーブのあるロの字の平屋
ご主人の希望は、平屋・開放感・薪ストーブの3つ。開放感を出すために建物の中央に中庭を設け、四方に大きな窓を配置。玄関からも廊下からもLDKからも木々を眺めることができ、室内に明るい光を取り込んでくれる。施工例で見つけて気に入っていた、中庭に向かいつつ、読書や仕事ができるスタディコーナーを一面に採用した。
そのほか、ファイブホームでは、
たくさんのお客様から嬉しい声をいただいています!!
今回みられる建物はコチラ!
アクセス
静岡県富士宮市山宮1510
> 地図を見る
※所在地はご予約をされた方にのみ詳細をお送りしております。
